Westport Car Parks - Site G, Shelton Road, Willowbrook Industrial Estate. 13.86 Acres (Gross), 9.13 Acres Let to BCA. Automotive.
Corby is located in Northamptonshire and lies 14.5km (9 miles) north of the A14, which links the M1 and A1. The town is approximately 37km (23 miles) north-east of Northampton, 35km (22 miles) south-east of Leicester and 31km (20 miles) west of Peterborough. The east coast ports of Felixstowe and Harwich and the major conurbations of Manchester, Leeds, Bristol and London are all within three hours drive time.
Corby has been included within the Government's Milton Keynes and South Midlands Sub-Regional strategy. According to government figures released in March 2010 Corby has the fastest growing population in the UK. Up to 2021 North Northamptonshire is estimated to grow its employment workforce by 47,400ff0000 jobs and, to absorb this growth in population, 16,800 new houses are due to be built in Corby over the same period.
Corby has a population of 87,000 (2009 census) which is expected to rise by 1% per annum from 2009 to 92,000 by 2014. It’s significant industrial base attracts major companies to the town including Avon Cosmetics, Golden Wonder, British Steel Consumer Products, British and American Tobacco, Dixons, Electrolux & Morrisons.
Road - Corby has excellent road communications, with the A6 offering links to Leicester 40km (24.8 miles) to the north west and the A43 connecting the town with Peterborough 40km (25 miles) to the north east and Northampton 36.5km (22.7 miles) / to the south west. The A43 also provides access to the A14 16km (10 miles) to the south. The A14 links to the M11 and Cambridge 67.5km (42 miles) to the south east and the M1 46km (28.6 miles) to the West. The Corby Southern Relief Road, a £34 million project is now open.
Rail - A new station in Corby, opened in April 2009, provides direct links to London St. Pancras with a fastest journey time of 1 hour and 14 minutes.
The Property is situated on the northern edge of Willowbrook East Industrial Estate, 3.5km (2.2 miles) to the north of Corby town centre.
The property is accessed directly from Shelton Road with the Rockingham Speedway Situated directly to the north. Shelton Road leads south to the A6116 Steel Road which runs east west to Corby town centre and the A43 respectively. The A14 link to the A1 approximately 22km (13.6 miles) to the north east. To the south east the A43 connects with the A14 at Kettering before joining the M1 at Junction 19.46 km (28.5 miles) from the property.
The newly developed £8.3m Corby railway station is approximately 3.5km (2.2 miles) to the south-west to the property. It has been estimated by the North Northants Development Company, that the opening of this rail service has the potential to unlock an estimated £200m of further commercial investment in the area.
The property is adjacent to and south of Rockingham Motor Speedway. There is currently a development Master-Plan being prepared by North Northants Development company involving over 80.94ha (200 acres) of land for a high quality employment development centred on the speedway circuit. This proposal incorporates the property.
The property is also a short distance from Priors Hall, which, at 400ha (988 acres), is one of the largest on-going developments in the country. Since gaining planning approval in 2007, significant development has taken place. The scheme will provide 5,100 homes, three new schools, 200ha (494.2 acres) of parkland and employment initiatives designed to generate 3,000 jobs.

9.13 Acres of the property is currently used as a car/vehicle storage area and benefits from Palisade Fencing, CCTV, tarmac roads and oily/water interceptors. The tenant is required to keep these items in good and substantial repair for the duration of the lease.
The property occupies a site area of approximately 13.86 acres.
The property held is freehold.
In January 2005, the vendor agreed to dispose of part of the freehold to BCA for £1 as a result of the buyer extending and adjoining property which they also owned on to the subject property. However, as part of the transaction it was agreed that this area of land would remain within the demise of the tenant.
3.69 hectares (9.13 acres) of the property is currently used as a car/vehicle storage area and is let to BCA Automotive on a 20 year lease at £18,000 an acre (5 year reviews to RPi) - £164,340.00. It is a full repairing and insuring lease expiring on the 22nd March 2038.
The property was granted consent for use as a car storage facility in October 1999. The property has been designated in the Local Development Framework as an area for development as industrial use under B1, B2 or B8.
A 6 acre section of the adjacent site has planning consent for the erection of an Advanced Conversion Technology (ACT) and Anaerobic Digestion (AD) Facility with an integrated Education Centre, access, landscaping and associated work - land at Shelton Road, Willowbrook Industrial Estate, Corby for Wild Wind Ventures Ltd.
In March 2002 Babtie Group were commissioned as consultants on the remediation of the property before it's use as a car parking facility. This involved reworking and levelling the property, with validation samples taken from the surface soils to confirm soil concentrations were below the acceptable concentrations. The property was then capped with crushed natural stone and a membrane barrier.
The validation report concludes that there are no environmental issues with the property being used for its current purpose.
A review of this validation report carried out in January 2010 summarises that in light of the remediation works undertaken no additional soil remediation is envisaged for a redevelopment to Business Park use. Further information is available on request.
Any size projects considered

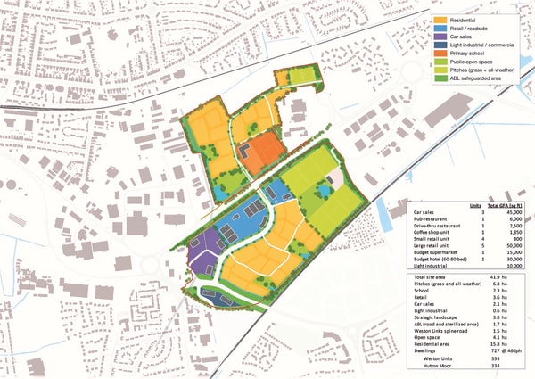
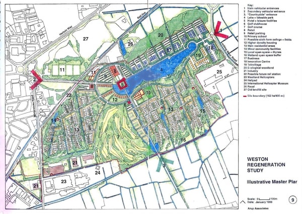
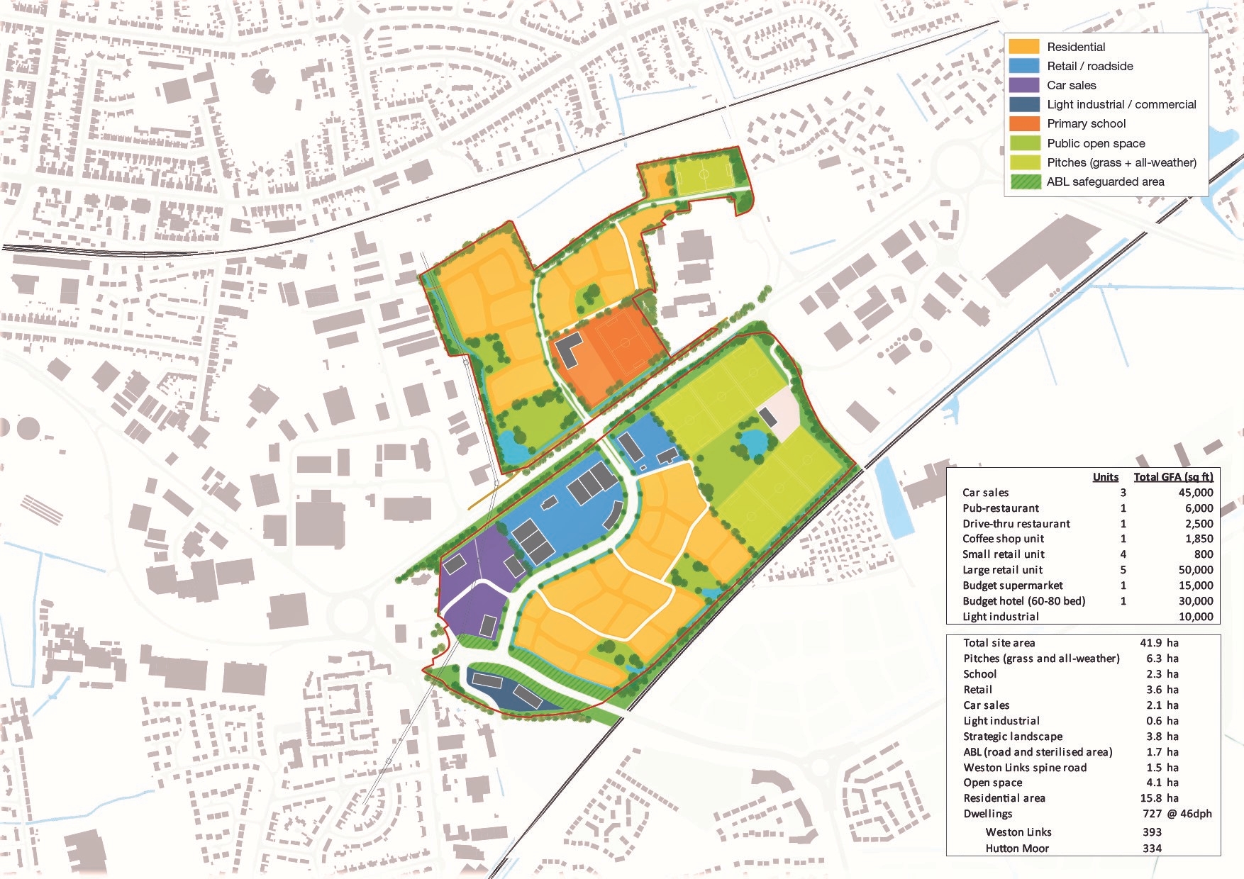
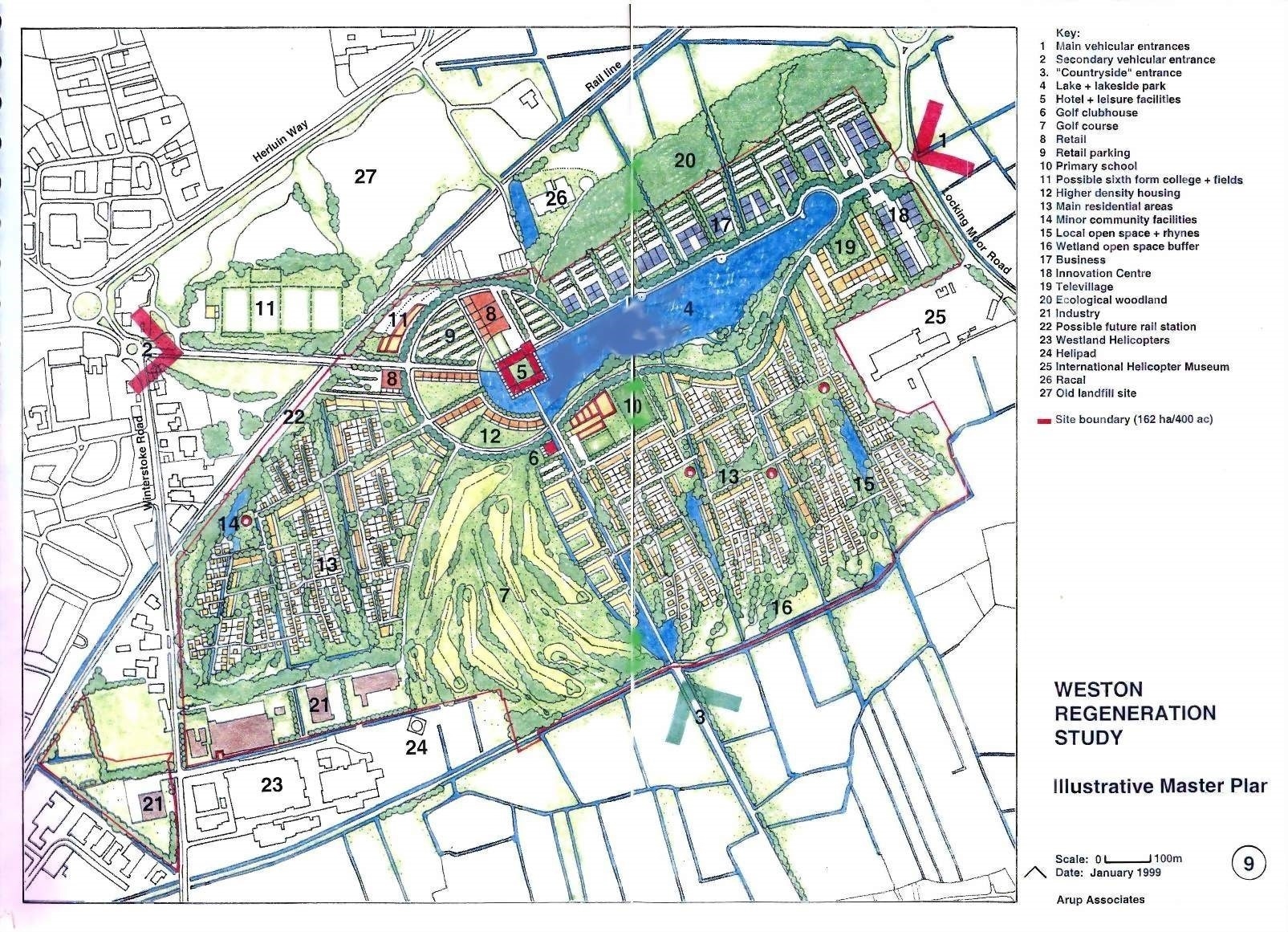
Weston links amended usage from golf Golf Facility to mixed use, predominantly residential

Both leisure & Industrial uses developed out on various sites

Both offices & Income generating leases added to portfolio

Ready to start your next project with us? That's great! Give us a call or send us an email and we will getback to you as soon as possible!